DLN4L : Lineo Tilt Pro - Linkable 120V LED Strip

Project Folder
Description
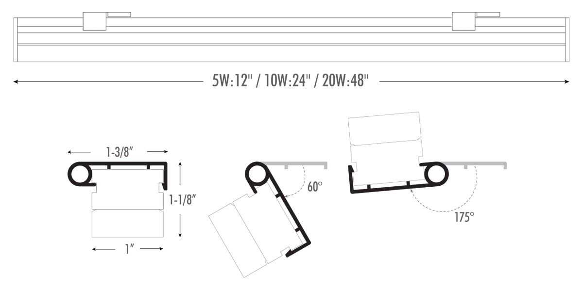
3-Wire Dimming modular system allows for tool-free installation by quickly linking bars from end to end. Made with a frosted polycarbonate lens to protect the LED from dust and damage. Optional accessory JBox (DLN4A1) with integral On/Off Switch & KOs for Hardwiring input. Each Fixture supplied with (2) adjustable tilt mounting clips, screws and end-to-end connectors (additional accessory connectors sold separately). Available in Warm White (3000K), Cool White (4000K), and integral color select switch for 3000K/3500K/4000K that enables three color temperatures in one fixture.
Please see 27K version here at this link.
Benefits
- Linkable
- Energy Efficiency
- Integral 120v Electronic Driver
- Low Profile Height
- ELV Dimming
- On/Off switch on JBOX
- 30K & 40K and Integral Switch for Selectable Color Temperature 30K/35K/40K
- Illuminated Endcaps
- Hot Spot Free Optics and Shadow Free End Caps
Available Features
?
Available Features
Based on the option chosen these features will be available. Please check the webpage and specification sheet to ensure the particular feature applies to your product.
Available Features
Based on the option chosen these features will be available. Please check the webpage and specification sheet to ensure the particular feature applies to your product.
Order Configurator
Description
Each Fixture supplied comes with (2) adjustable tilt mounting clips, screws and end-to-end connectors.
All additional mounting clips, various size connectors and j-boxes are sold separately.
Contact Customer Service for availability.
120V input only. **Not compatible with Lineo Non-Dimming Luminaires**










